Portfolio
Individual Approach
I create interiors that reflect the client’s personality. Your space is you. Be bold!
Skills and Tools
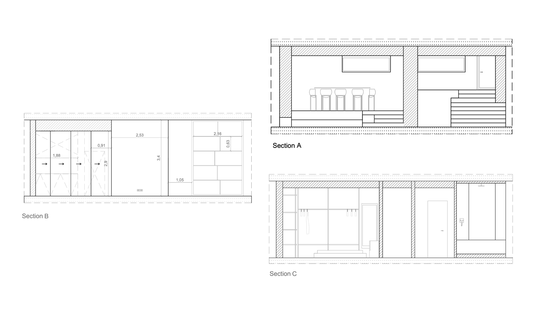
I work with CAD and SketchUp, developing visualizations and drawings for a clear project vision.
Materials and Details
I carefully select materials and collaborate with unique artists and designers. Every detail has its place
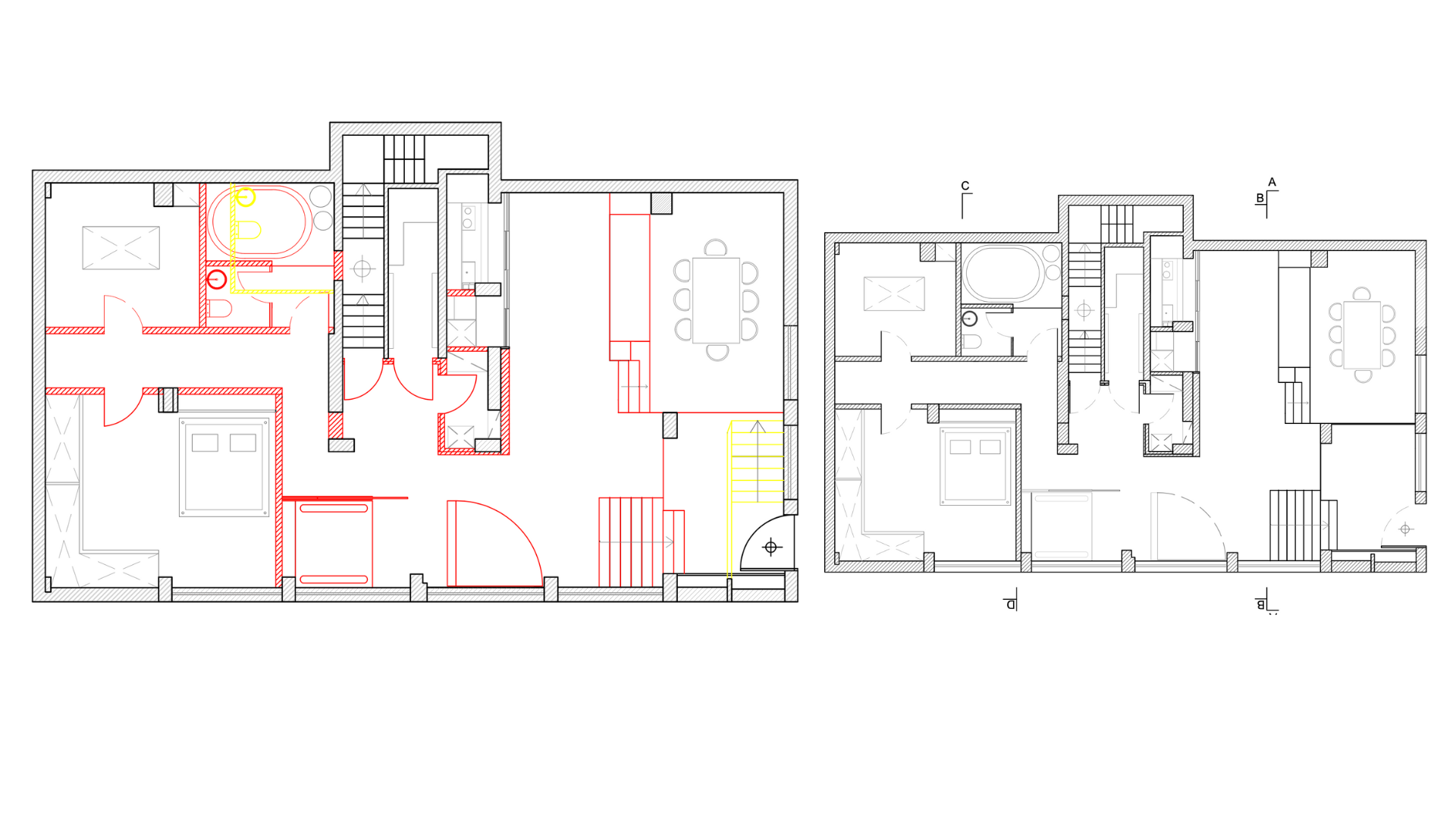
This project, I combined several styles based on the client’s request — the main protagonist:
- In
- The first is a Japanese motif, inspired by harmony and natural simplicity.
- The second is minimalism, emphasizing open space to make the home feel like a studio for creativity and work.
- The third is a functional area, perfectly suited for parties and presentations.
Every detail has been carefully designed to balance comfort and versatility.


I redesigned the main entrance to expand the space and create the feel of a studio suitable for work and hosting friends. I included areas for solitude, relaxation, and reading, as well as a space for presentations. A special highlight is the large bathtub, reflecting the preferences of the main character and adding a sense of tranquility and harmony to the project.
The apartment is designed as an open space for hosting guests, with minimal furnishings and easy maintenance. The floors are made of special heated tiles, and the kitchen is enclosed to avoid interfering with the creative process. Despite the compact space, I managed to include a guest restroom to minimize discomfort when accommodating a larger number of people. The space seamlessly transforms from a work area into a comfortable living environment, thanks to wooden walls that conceal doors and create the feel of a studio.
TeleSPACE
This project is designed for a creative IT team of 10-12 people, specializing in the development of educational programs. On the second floor, there is a communal bar, designed in a playful style, named “Kindergarten,” where employees can relax and feel like children. The space combines vibrant colors and modern technology, inspiring innovation and activity. Special attention is given to creating the feeling that the office is like a television, within which the team works actively, shaping the future. The atmosphere of the space balances the past, present, and future, with visual elements that emphasize the dynamic, fast-paced nature of their work in creating educational platforms for the next generation.

















